Ecolitbau s.r.o.
Titan Vault: zateplena garáž 31,5m2
Titan Vault: zateplena garáž 31,5m2
1- Fáze: Hrubá stavba
2 - Fáze: Stavba na klíč ( rozpis ZDE )
✅ Moderní ocelová konstrukce
✅ Zateplení PUR pěnou – vysoká úspora energií
✅ Rychlá a přesná montáž
✅ Odolná fasáda a střecha
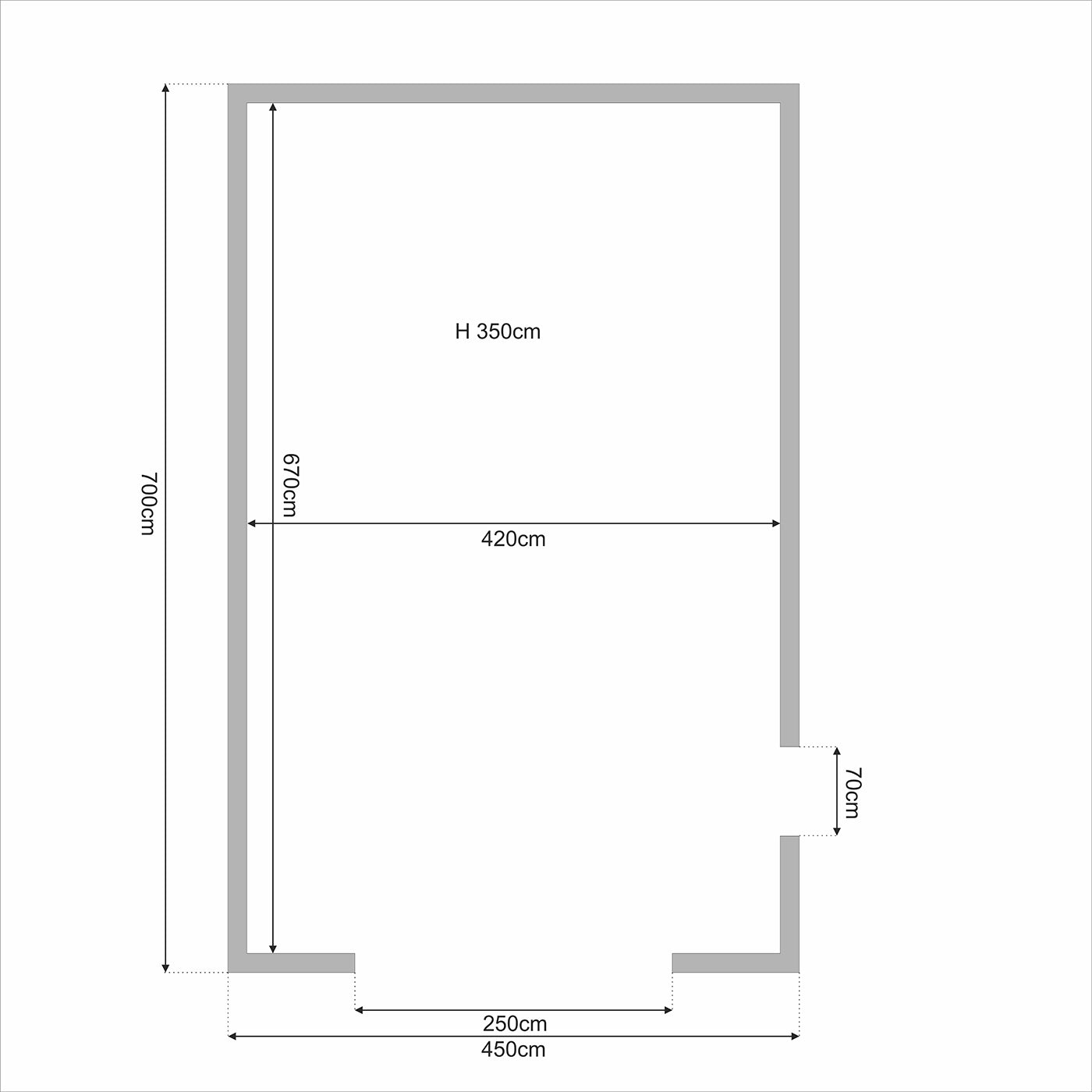
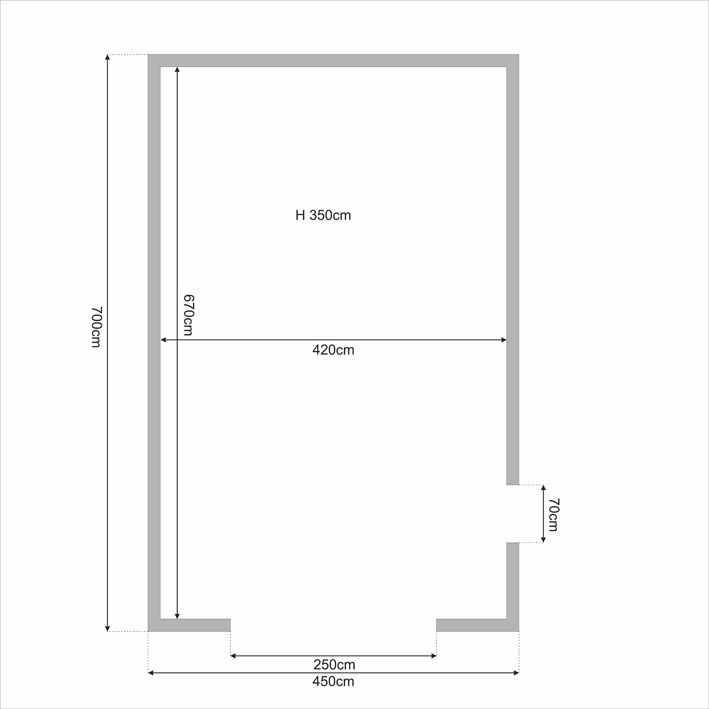
Základní parametry:
Zastavěná plocha: 31,5 m² ( 4,5m x 7m )
Užitná plocha: 28,14 m² ( 4,2m x 6,7m )
Výška garáže: 3,5 m
Co hrubá stavba obsahuje:
🔩 Ocelová rámová konstrukce ECOLIT
Naše společnost využívají moderní ocelovou rámovou technologii ECOLIT, která spojuje pevnost, přesnost a výborné izolační vlastnosti.
Hlavní nosnou část tvoří lehký ocelový skelet, který je vyplněn PUR pěnou aplikovanou nástřikem. Díky této technologii získává konstrukce výborné tepelně-izolační vlastnosti, přičemž nevznikají žádné tepelné mosty.
Vrata
🧱 Obvodové zdi (vnější stěny):
Každá obvodová stěna se skládá z několika pečlivě navržených vrstev:
Vnitřní sádrokarton – čistý a rovný povrch pro interiér
PUR pěna (izolace) – nástřikem vyplněná dutina ocelového rámu
OSB deska
Extrudovaný polystyren (XPS) – další tepelná izolace zvenčí
Mnichovská omítka ( sít, lepidlo, omítka) – moderní a odolný finální povrch
🔒 Výsledek? Silná, pevná a teplá zeď, která je připravená odolávat počasí i času.
🏠 Střecha a strop:
Tato garáž je vybaven rovnou střechou, která kombinuje moderní vzhled s vysokou funkčností.
Z vnější strany ji kryje odolný střešní plech, uvnitř je zakončena sádrokartonovým stropem, a prostor mezi nimi je vyplněn stříkanou PUR pěnou – ta dokonale utěsní celou konstrukci a zajistí špičkovou tepelnou izolaci.
Bez tepelných mostů
Ochrana proti vlhkosti
Moderní a čistý vzhled
💡 Díky PUR pěně stříkané přímo do konstrukce nevznikají mezery – střecha je kompaktní a těsnící, ideální pro celoroční použití.
🟢 Výhody konstrukce s PUR pěnou
Vysoká tepelná izolace (ušetříš na vytápění)
Dokonalé vyplnění – žádné mezery nebo tepelné mosty
Pevná a lehká konstrukce
Rychlá montáž a suchý proces výstavby
Dlouhá životnost bez údržby Dostatečné odhlučnění
👉 Tato garáž je ideálním řešením pro ty, kteří hledají moderní, úsporné a rychle stavební řešeni garáže.

